ZJHJP/M精小型氣動調節閥
一、精小型氣動薄膜調節閥 產品概述
本公司的ZJHJP系列精小型氣動薄膜調節閥,由多彈簧氣動薄膜執行機構和低流阻精小型調節閥閥體組成,多彈簧執行機構高度低、重量輕、裝備簡便。精小型氣動調節閥閥體流道呈S流線型,具有結構緊湊、重量輕、動作快、壓降損失小、閥容量大、流量特性精度高、維護方便等優點,可用于苛刻的工作條件。氣動薄膜調節閥配用電-氣閥門定位器或氣動閥門定位器,可實現對工藝管路流體介質的自動調節控制。精小型氣動調節閥主要應用于控氣體、液體、蒸汽等介質的工藝參數如壓力、流量、溫度、液位等參數保持在給定值氣。精小型氣動調節閥適用于允許泄露量小、閥前后壓差不大及有一些粘度和含少量纖維介質的場合。
|
|
|---|---|
| ZJHJP/M精小型氣動薄膜調節閥 (YT-1000L) | ZJHJP/M精小型氣動薄膜調節閥 (智能一體式) |
二、精小型氣動薄膜調節閥 主要技術參數
| 公稱通徑(DN) | 20 | 25 | 32 | 40 | 50 | 65 | 80 | 100 | 125 | 150 | 200 | 250 | 300 | |
|---|---|---|---|---|---|---|---|---|---|---|---|---|---|---|
| 閥座直徑(dn) | 20 | 25 | 32 | 40 | 50 | 65 | 80 | 100 | 125 | 150 | 200 | 250 | 300 | |
| 額定流量系數(KV) | 單座 | 6.9 | 11 | 17.6 | 27.5 | 44 | 69 | 110 | 176 | 275 | 440 | 630 | 875 | 1250 |
| 套筒 | 6.3 | 10 | 16 | 25 | 40 | 63 | 100 | 160 | 250 | 360 | 570 | 850 | 1180 | |
| 允許壓差(MPa) | 單座 | 3.8 | 3.2 | 3.0 | 2.0 | 1.8 | 1.5 | 1.4 | 1.0 | 0,7 | 0.6 | 0.5 | 0.3 | 0.1 |
| 套筒 | 6.4 | 6.4 | 5.2 | 5.2 | 4.6 | 4.6 | 3.7 | 3.7 | 3.5 | 3.1 | 3.1 | 2.6 | 2.2 | |
| 公稱壓力(MPa) | 1.6、2.5、4.0、6.4、10.0 | |||||||||||||
| 額定行程(mm) | 16 | 25 | 40 | 60 | 100 | |||||||||
| 執行器型號 | ZHA/B-22 | ZHA/B-23 | ZHA/B-34 | ZHA/B-45 | ZHA/B-56 | |||||||||
| 閥蓋形式 | 標準型(-17~+250℃)、高溫型(+250~+450℃)、低溫型(-40~-196℃)、波紋管密封型(-40~+350℃) | |||||||||||||
| 壓蓋形式 | 螺栓壓緊式 | |||||||||||||
| 密封填料 | V型聚四氟乙烯填料、V型柔性石墨填料 | |||||||||||||
| 閥芯形式 | 單座式、套筒式 | |||||||||||||
| 流量特性 | 等百分比、直線性 | |||||||||||||
三、精小型氣動薄膜調節閥 執行器技術參數
| 配置執行器類別 | ZHA/B多彈簧簿膜執行機構 | ||||
|---|---|---|---|---|---|
| 執行器型號 | ZHA/B-22 | ZHA/B-23 | ZHA/B-34 | ZHA/B-45 | ZHA/B-56 |
| 有效面積(cm2) | 350 | 350 | 560 | 900 | 1400 |
| 行程(mm) | 10、16 | 24 | 40 | 40、60 | 100 |
| 彈簧范圍(KPa) | 20~100(標準)、20-60、60-100、40-200、80-240 | ||||
| 膜片材料 | 丁腈橡膠夾尼龍布、乙丙橡膠夾尼龍布 | ||||
| 供氣壓力 | 140~400KPa | ||||
| 氣源接口 | RC1/4" | ||||
| 環境溫度 | -30~+70℃ | ||||
| 可配附件 | 定位器、空氣過濾減壓器、保位閥、行程開關、閥位傳送器、手輪機構等 | ||||
| 作用形式 | 氣關式(B)—失氣時閥位開(FO);氣開式(K)—失氣時閥位關(FC) | ||||
四、精小型氣動薄膜調節閥 主要結構圖
|
|
| 精小型氣動調節閥 (單座結構圖) | 精小型氣動調節閥 (套筒結構圖) |
五、精小型氣動薄膜調節閥 主要零件材料
| 1 | 閥體 | WCB | 304 | 316 | 316L |
|---|---|---|---|---|---|
| 2 | 墊片 | PTFE\石墨墊片 | PTFE\石墨墊片 | PTFE\石墨墊片 | PTFE\石墨墊片 |
| 3 | 閥座/套筒 | 304 | 304 | 316 | 316L |
| 4 | 閥芯 | 304 | 304 | 316 | 316L |
| 5 | 導向套/并帽 | 304 | 304 | 316 | 316L |
| 6 | 中墊 | PTFE\石墨墊片 | PTFE\石墨墊片 | PTFE\石墨墊片 | PTFE\石墨墊片 |
| 7 | 閥蓋 | WCB | 304 | 316 | 316L |
| 8 | 閥桿 | 304 | 304 | 316 | 316L |
| 9 | 金屬墊 | 304 | 304 | 316 | 316L |
| 10 | 填料 | PTFE/石墨 | PTFE/石墨 | PTFE/石墨 | PTFE/石墨 |
| 11 | 螺栓 | 25 | 不銹鋼 | 不銹鋼 | 不銹鋼 |
| 12 | 填料壓蓋 | WCB | 304 | 316 | 316L |
六、精小型氣動薄膜調節閥 主要性能指標
| 項目 | 不帶定位器 | 帶定位器 | ||
|---|---|---|---|---|
| 基本誤差% | ±5.0 | ±1.0 | ||
| 回差% | 3.0 | 1.0 | ||
| 死區% | 3.0 | 0.4 | ||
| 始終點偏差% | 氣開 | 始點 | ±2.5 | ±1.0 |
| 始點 | ±5.0 | ±1.0 | ||
| 氣關 | 始點 | ±5.0 | ±1.0 | |
| 終點 | ±2.5 | ±1.0 | ||
| 額定行程偏差% | ≤2.5 | |||
| 泄露量L/h | 0.01%×閥額定容量 | |||
| 可調范圍R | 30:1 | |||
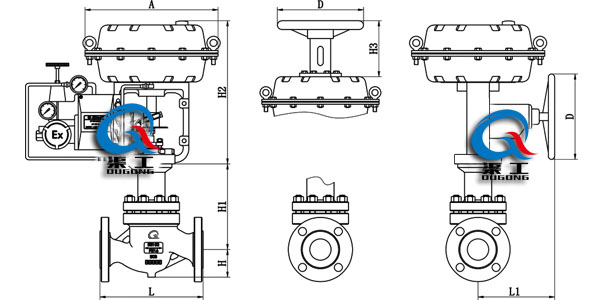
七、精小型氣動薄膜調節閥 外形圖
|
|---|
| 精小型氣動薄膜調節閥 (外形尺寸圖) |
八、精小型氣動薄膜調節閥 安裝連接尺寸
| 公稱通徑 DN(mm) | 20 | 25 | 32 | 40 | 50 | 65 | 80 | 100 | 125 | 150 | 200 | |
|---|---|---|---|---|---|---|---|---|---|---|---|---|
| L | PN16/25 | 181 | 184 | 200 | 222 | 254 | 276 | 298 | 352 | 410 | 451 | 600 |
| PN40 | 194 | 197 | 200 | 235 | 267 | 292 | 317 | 368 | 425 | 473 | 610 | |
| PN64 | 206 | 200 | 210 | 251 | 286 | 311 | 337 | 394 | 440 | 508 | 650 | |
| H | PN16/25 | 52.5 | 57.5 | 75 | 75 | 85.5 | 92.5 | 100 | 110 | 142.5 | 158 | 170 |
| PN40 | 52.5 | 57.5 | 75 | 75 | 82.5 | 92.5 | 100 | 117.5 | 150 | 167.5 | 187.5 | |
| PN64 | 65 | 40 | 85 | 85 | 90 | 102.5 | 107.5 | 125 | 172.5 | 195 | 207.5 | |
| H1 | 132 | 132 | 158 | 170 | 179 | 214 | 221 | 234 | 270 | 294 | 331 | |
| H2 | 298 | 298 | 298 | 298 | 298 | 380 | 380 | 380 | 510 | 510 | 510 | |
| H3 | 180 | 180 | 180 | 180 | 180 | 236 | 236 | 236 | 310 | 310 | 310 | |
| L1 | 289 | 289 | 289 | 289 | 289 | 347 | 347 | 347 | 476 | 476 | 476 | |
| A | 282 | 282 | 282 | 282 | 282 | 360 | 360 | 360 | 470 | 470 | 470 | |
| D | 220 | 220 | 220 | 220 | 220 | 270 | 270 | 270 | 320 | 320 | 320 | |


滬公網安備31012002006630號
