一、彈簧微啟式外螺紋安全閥 產品概述
A21H微啟式安全閥適用于工作溫度≤200℃的空氣、氨、石油氣等介質的設備和管路上;
A21W微啟式安全閥適用于工作溫度≤200℃含腐蝕性的氣體或液體的設備和管路上;
A21F微啟式安全閥型適用于工作溫度≤200℃的液化氣、石油氣等設備和管路上,作為超壓保護裝置。
當設備和管路內壓力超過允許值時,閥門自動開啟,繼而全量排放;
當壓力降到規定值時,閥門自動關閉,可使設備和管路平穩的運行;
|
|
|---|---|
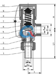
| A21H/F/W彈簧微啟式外螺紋安全閥 | A21H/F/W彈簧微啟式外螺紋安全閥 (主要連接尺寸) |
二、彈簧微啟式外螺紋安全閥 主要零件材料
| NO | 零件名稱 | A21H-C/A21F材料 | A21W-P/A21F-P材料 | A21Y-R材料 |
|---|---|---|---|---|
| 1 | 管接頭 | 20 | 1Cr18Ni9Ti | 1Cr18Ni12Mo2Ti |
| 2 | 管接頭螺母 | 35 | 2Cr13 | 1Cr18Ni9Ti |
| 3 | 閥座 | 35 | 1Cr18Ni9Ti | 1Cr18Ni12Mo2Ti |
| 4 | 閥體 | 2Cr13 | 1Cr18Ni9Ti | 1Cr18Ni12Mo2Ti |
| 5 | 閥瓣 | 2Cr13/2Cr13+PTFE | 1Cr18Ni9Ti/1Cr18Ni9Ti+PTFE | 1Cr18Ni12Mo2Ti |
| 6 | 彈簧座 | 2Cr13 | 1Cr18Ni9Ti | 1Cr18Ni12Mo2Ti |
| 7 | 彈簧 | 50CrVA | 50CrVA包覆氟塑料 | 50CrVA包覆氟塑料 |
| 8 | 鎖緊螺母 | Q235-A | ZG230-450 | 1Cr18Ni9Ti |
| 9 | 彈簧導向墊 | 2Cr13 | 1Cr18Ni9Ti | 1Cr18Ni12Mo2Ti |
| 10 | 調節螺母 | Q235-A | 2Cr13 | 1Cr18Ni12Mo2Ti |
| 密封面材料 | "Y"型堆焊Co基硬質合金,"H"型堆焊D507,"W"型為閥門本體 | |||
三、彈簧微啟式外螺紋安全閥 主要外形連接尺寸
| 型號 | 公稱通徑 | do | d | Do | M | d1 | D1 | L | L1 | ≈H |
|---|---|---|---|---|---|---|---|---|---|---|
|
A21H-16C A21H-40C A21W-16P A21W-40P |
15 | 12 | 15 | 20 | M27×1.5 | G1/2" | 30 | 35 | 76 | 66 |
| 20 | 16 | 20 | 25 | M33×1.5 | G3/4" | 35 | 40 | 87 | 68 | |
| 25 | 18 | 25 | 31 | M39×1.5 | G1" | 40 | 50 | 100 | 105 | |
|
A21Y-64 A21Y-64P A21Y-100 A21Y-100P |
15 | 10 | 15 | 25 | M39×1.5 | G1" | 44 | 50 | 100 | 66 |
| 20 | 10 | 20 | 31 | M39×1.5 | G1" | 44 | 50 | 100 | 68 | |
| 25 | 12 | 25 | 31 | M39×1.5 | G1" | 44 | 50 | 100 | 105 | |
| A21W-160/160P | 15 | 8 | 20 | / | M24×2 | G1" | 44 | 50 | 100 | 261 |
| 20 | 8 | 25 | / | M33×2 | G1" | 44 | 50 | 100 | 261 | |
| 25 | 8 | 28 | / | M36×2 | G1" | 44 | 50 | 100 | 285 |
四、彈簧微啟式外螺紋安全閥 訂貨須知
訂貨時請填寫《規格書》或注明以下內容:
1、若訂貨前未選定型號,請向我們提供使用參數:1.公稱通徑,2.流體性質(包括公稱壓力、溫度、粘度或酸堿性),3.閥體、閥芯材料。
2、若已經由設計單位選定我公司的A28H彈簧全啟式安全閥產品型號,請按型號直接向我司訂購;


滬公網安備31012002006630號
